Scroll
  • Plot
    7
  • Plot area (m2)
    900,00
  • Typology
    V3
  • Floors above ground
    2
  • Basement
    1
  • Maximum height (m)
    7,50
  • Ground floor level (m)
    87,50
  • Gross construction area (m2)
    240,00

Basement

  • 22 Technical area 1
    32,70 m2
  • 23 Pool technical area
    18,10 m2
  • 24 Technical area 2
    16,60 m2
  • 25 Rack technical area
    4,20 m2
  • 26 Circulation
    10,40 m2
  • 27 Parking lift
    23,30 m2

Ground floor

  • 01 Entrace hall
    4,90 m2
  • 02 Bedroom 1
    14,05 m2
  • 03 Ensuite bathroom 1
    5,55 m2
  • 04 Living and dinnig room
    49,10 m2
  • 05 Kitchen
    14,10 m2
  • 06 Toilet
    2,75 m2
  • 07 Circulation 1
    7,90 m2
  • 08 Circulation 2
    3,85 m2
  • 09 Outdoor parking
     

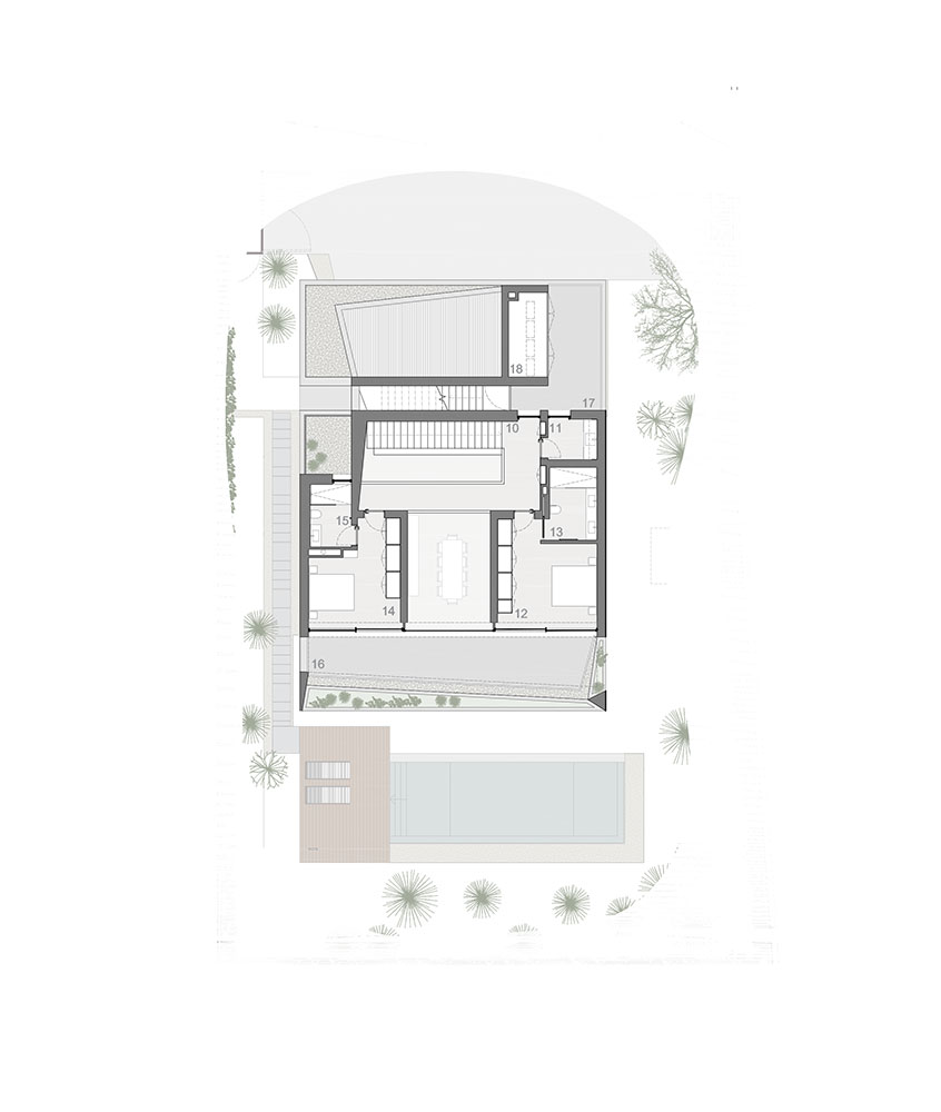
First floor

  • 10 Circulation
    14,65 m2
  • 11 Laundry room
    4,05 m2
  • 12 Bedroom 2
    19,15 m2
  • 13 Ensuite bathroom 2
    7,15 m2
  • 14 Bedroom 3
    16,65 m2
  • 15 Ensuite bathroom 3
    5,30 m2
  • 16 Terrace
    25,15 m2
  • 17 Terrace
    14,80 m2
  • 18 Technical terrace
    5,80 m2
  • 19 Technical area
    5,35 m2

Roof plan

  • 20 Technical terrace
    34,35 m2
  • 21 Technical area
    18,05 m2